中古戸建 武岡4丁目
広々としたゆとりある3LDKの平屋住宅♪オール電化+太陽光発電搭載で光熱費を抑えやすく環境にも配慮された住宅です。駐車スペースあり2台あり、バス停も近く交通アクセスも便利です。
登録日/2026年03月07日 更新日/2026年03月07日 次回更新予定日/随時
お問い合わせ番号/ 620
オープンハウス開催
2月28日(土)〜4月30日(木)10時00分〜17時00分
2月28日(土)〜4月30日(木)10時00分〜17時00分
中古戸建
3,580万円
(価格公表日:2026-03-07)
鹿児島県鹿児島市武岡4丁目15-9- 建物構造/階建
- 木造/1階建
- 築年月
- 【平成30年】2018年06月 / 築7年
- 最寄駅
-
- 九州新幹線
- 鹿児島中央駅
- バス乗車30分
- 武岡ハイランド中央バス停
- 停歩2分
- 鹿児島本線
- 鹿児島中央駅
- バス乗車30分
- 武岡ハイランド中央バス停
- 停歩2分
- 鹿児島本線
- 鹿児島駅
- バス乗車28分
- 武岡ハイランド中央バス停
- 停歩2分
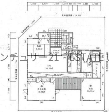
- 間取り/面積
-
- 間取り
- 3LDK
- 土地面積
- 204.59m2 / 61.88坪
- 延床面積
- 98.54m2 / 29.80坪
- 延床面積1F
- -
- 延床面積2F
- -
オープンハウス
この物件の主な特徴
角地 前道6m以上 部屋向き 南西向き LDK広さ 20帖以上 オール電化 電気 室内物干し フローリング 全居室フローリング 駐車可能台数 2台可 ダウンライト エアコン エアコン2台以上 床暖房 クローゼット ウォークインクローゼット 床下収納 カウンターキッチン IHクッキングヒーター コンロ口数 三口 グリル キッチン床暖房 食器洗乾燥機 食器乾燥機 追い焚き 浴室暖房 浴室乾燥機 温水洗浄便座 ウッドデッキ 太陽光発電システム BS TVインターホン 火災警報器(報知機) 入居可能時期 即入居可 ※設備名をクリックで対象の設備の物件一覧を絞り込みローンシミュレーション
- 物件価格
- 3,580万円
- 金利
- 返済期間
-
年
※物件によってはローン年数が変わる場合がございます。
- 頭金
-
万円
※半角数字でご入力ください。
- ボーナス併用支払い
-
併用する
3580.00万円のうちボーナス返済分
万円
※半角数字でご入力ください。
- 月割返済額
- ボーナス支払い額
(年2回) - 学校区
-
- 小学校区
- 武岡台小学校 距離:555m
- 中学校区
- 武岡中学校 距離:773m
- 間取り詳細
-
階数 区分 広さ - 駐車場
-
- 駐車可能台数
- 有2台
- 駐車場所
- -
- 分譲駐車場
- -
- 駐車料金
- -
- 税
- -
- タイプ
- カースペース
- 公共設備
-
- ガス
- -
- 水道
- -
- 汚水
- -
- 雑排水
- -
- 接道状況 他
-
- 向
- 二方
- 角地
- 角地
- 公道
- 北
- 幅員
- 6.00m
- 接面
- 10.50m
- 公道
- 西
- 幅員
- 6.00m
- 接面
- 16.50m
- 私道
-
- 私道
- -
- 持分
- -
- 面積(区分)
- -
- 面積
- -
- 面積(単位)
- -
- セットバック面積
-
- 状態
- -
- 幅
- -
- 面積
- -
- 現況
- 空家
- 引渡時期
- 相談
--- - 地目
- 宅地
- 地勢
- -
- 用途地域
- 第一種低層住居専用地域
- - 建ぺい/容積率
- 60%/80%
- 都市計画
- 市街化区域
- 建築許可理由
- -
- 建築確認番号
- 第29-1190号
- リフォーム
- -
-
キッチン:-
浴槽:-
トイレ:-
壁:-
床:-
全室:-
その他:-
洗面所:-
給湯器:-
給排水管:-
内装全面:-
外壁:-
屋根:-
その他:- - リノベーション
- -
- - 土地権利
-
- 権利
- 所有権
- 備考
- -
- 権利金
- -
- 再建築
- -
- 国土法届出
- 不要
- その他制限事項
- -
備考:- - フラット利用
- -
- 手付金保証
- -
- 町会費
- --
- リボーン21
- -
- 備考
- 1.人気の平屋住宅で快適な暮らし
階段のない平屋建てのため移動が楽で家事動線もスムーズ。将来も安心して暮らせる住まいです。
2.広々ゆとりある3LDK
LDKを中心に各居室が広く確保された間取り。10帖の洋室などゆったりとした居住空間が魅力です。
3.オール電化+太陽光発電搭載
IHクッキングヒーターやエコ設備を採用。光熱費を抑えやすく環境にも配慮された住宅です。
4.ウッドデッキ付きのくつろぎ空間
リビングからつながるウッドデッキで、家族の団らんやお子様の遊び場としても活用できます。
5.駐車2台可+バス停徒歩約2分
駐車スペースを2台確保。バス停も近く交通アクセスも便利です。 - 取引態様
- 一般
※金利につきましては各金融機関の審査金利及び融資金利により異なります。
実際の返済額は結果と異なりますので、資産計画の目安としてご利用ください。
詳しいお問い合わせは、こちらよりご相談ください。
(公社)鹿児島県宅地建物取引業協会会員
(一社)九州不動産公正取引協議会加盟
(一社)九州不動産公正取引協議会加盟









































