新築戸建 リーブルガーデン西伊敷1号棟
閑静な住宅街に位置し、全室2面採光で明るく風通しの良い住まい。家族が自然と集まる15帖以上のLDKを中心に、システムキッチン・24時間換気・ウォークインクローゼットなど機能的な設備が揃います。
登録日/2025年08月04日 更新日/2025年12月08日 次回更新予定日/随時
お問い合わせ番号/ 391
2、「鉄筋入りコンクリートベタ基礎」を標準採用。ベタ基礎は地面全体を基礎で覆うため、建物の加重を分散して地面に伝えることができ、不動沈下に対する耐久性や耐震性を向上することができます。 構造・工法・仕様
4、「木造軸組み工法」は土台、柱、梁などの住宅の骨格を木の軸で造る工法で、改良・発達を繰り返してきました。接合部には補強金物、床には構造用合板を使用するなど、強い耐震性・耐久性を発揮しています。 構造・工法・仕様
6、1階と2階の床に「剛床工法」を選びました。これは構造用面材を土台と梁に直接留めつける工法で、床をひとつの面として家全体を一体化することで、横からの力にも非常に強い構造となります。 構造・工法・仕様
2、一建設が目指すのは、ライフサイクルの転換期を迎えた人たちに対して、新しい暮らしに適した「家」を提供すること。それが私たちの家づくりのコンセプト「ライフサイクルサポート」です。\n 構造・工法・仕様
オープンハウス開催
12月01日(月)〜2月28日(土)10時00分〜17時00分
12月01日(月)〜2月28日(土)10時00分〜17時00分
新築戸建
2,598万円
(価格公表日:2025-08-04)
鹿児島県鹿児島市西伊敷6丁目4444-1- 建物構造/階建
- 木造/2階建
- 築年月
- 【令和8年】2026年02月 / 築0年
- 最寄駅
-
- 九州新幹線
- 鹿児島中央駅
- バス乗車26分
- 西伊敷六丁目バス停
- 停歩2分
- 鹿児島本線
- 鹿児島駅
- バス乗車25分
- 西伊敷六丁目バス停
- 停歩2分
- 鹿児島本線
- 鹿児島中央駅徒歩95分
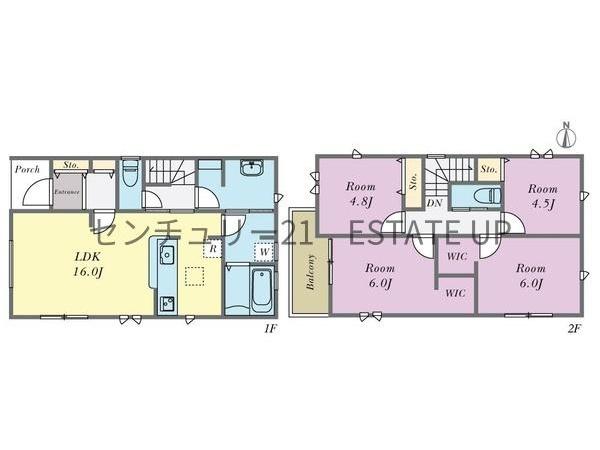
- 間取り/面積
-
- 間取り
- 4LDK
- 土地面積
- 119.32m2 / 36.09坪
- 延床面積
- 93.55m2 / 28.29坪
- 延床面積1F
- -
- 延床面積2F
- -
オープンハウス
この物件の主な特徴
階建 2階建 外壁サイディング ダウンライト 24時間換気システム 照明器具 床下収納 システムキッチン 浄水器 シャワー 浴室乾燥機 人感センサー付照明 ディンプルキー ※設備名をクリックで対象の設備の物件一覧を絞り込みローンシミュレーション
- 物件価格
- 2,598万円
- 金利
- 返済期間
-
年
※物件によってはローン年数が変わる場合がございます。
- 頭金
-
万円
※半角数字でご入力ください。
- ボーナス併用支払い
-
併用する
2598.00万円のうちボーナス返済分
万円
※半角数字でご入力ください。
- 月割返済額
- ボーナス支払い額
(年2回) - 学校区
-
- 小学校区
- 西伊敷小学校 距離:751m
- 中学校区
- 緑丘中学校 距離:1813m
- 間取り詳細
-
階数 区分 広さ - 駐車場
-
- 駐車可能台数
- --
- 駐車場所
- -
- 分譲駐車場
- -
- 駐車料金
- -
- 税
- -
- タイプ
- -
- 公共設備
-
- ガス
- -
- 水道
- -
- 汚水
- -
- 雑排水
- -
- 接道状況 他
-
- 向
- 一方
- 角地
- -
- 公道
- 西
- 幅員
- 5.00m
- 接面
- -
- 私道
-
- 私道
- -
- 持分
- -
- 面積(区分)
- -
- 面積
- -
- 面積(単位)
- -
- セットバック面積
-
- 状態
- -
- 幅
- -
- 面積
- -
- 現況
- 建築中
- 引渡時期
- 相談
--- - 地目
- 宅地
- 地勢
- -
- 用途地域
- 第一種低層住居専用地域
- - 建ぺい/容積率
- 50%/80%
- 都市計画
- 市街化区域
- 建築許可理由
- -
- 建築確認番号
- 第R07SHC110188号
- リフォーム
- -
-
キッチン:-
浴槽:-
トイレ:-
壁:-
床:-
全室:-
その他:-
洗面所:-
給湯器:-
給排水管:-
内装全面:-
外壁:-
屋根:-
その他:- - リノベーション
- -
- - 土地権利
-
- 権利
- 所有権
- 備考
- -
- 権利金
- -
- 再建築
- -
- 国土法届出
- 不要
- その他制限事項
- -
備考:- - フラット利用
- -
- 手付金保証
- -
- 町会費
- --
- リボーン21
- -
- 備考
- 1.広々4LDK
ライフスタイルに合わせて、子育て世帯にもコンパクト派にも対応。
2.収納充実プラン
各室収納・床下収納・ウォークインクローゼット付きで片付けラクラク。
3.陽当たり&通風良好
全室2面採光&角地ありの立地で、自然光に包まれる暮らし。
4.快適な生活設備
システムキッチン・カウンターキッチン・24時間換気・複層ガラスを標準装備。
5.閑静な住宅街
低層住居専用地域で落ち着いた住環境。子育て世帯にも安心の立地。
6.アクセス便利
「西伊敷六丁目」バス停まで徒歩2分。通勤・通学・買物にも便利。 - 取引態様
- 一般
※金利につきましては各金融機関の審査金利及び融資金利により異なります。
実際の返済額は結果と異なりますので、資産計画の目安としてご利用ください。
詳しいお問い合わせは、こちらよりご相談ください。
(公社)鹿児島県宅地建物取引業協会会員
(一社)九州不動産公正取引協議会加盟
(一社)九州不動産公正取引協議会加盟













































